Používame cookies

Súbory cookie a ďalšie technológie sledovania používame na zlepšenie vášho zážitku z prehliadania našich webových stránok, na to, aby sme vám zobrazovali prispôsobený obsah a cielené reklamy, na analýzu návštevnosti našich webových stránok a na pochopenie toho, odkiaľ naši návštevníci prichádzajú. Viac info

 

Jedinečná polyfunčná budova na hlavnom cestnom ťahu cez Hurbanovo

Ulica: Hurbanovo
Obec: Hurbanovo
Okres: Komárno
Kraj: Nitriansky kraj
Druh: Objekty
Typ: Predaj
Typ objektu: Obchodné priestory
88 000 €

Popis nehnuteľnosti

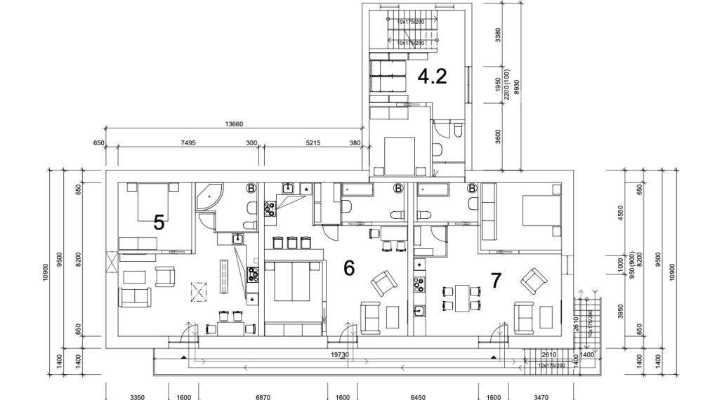
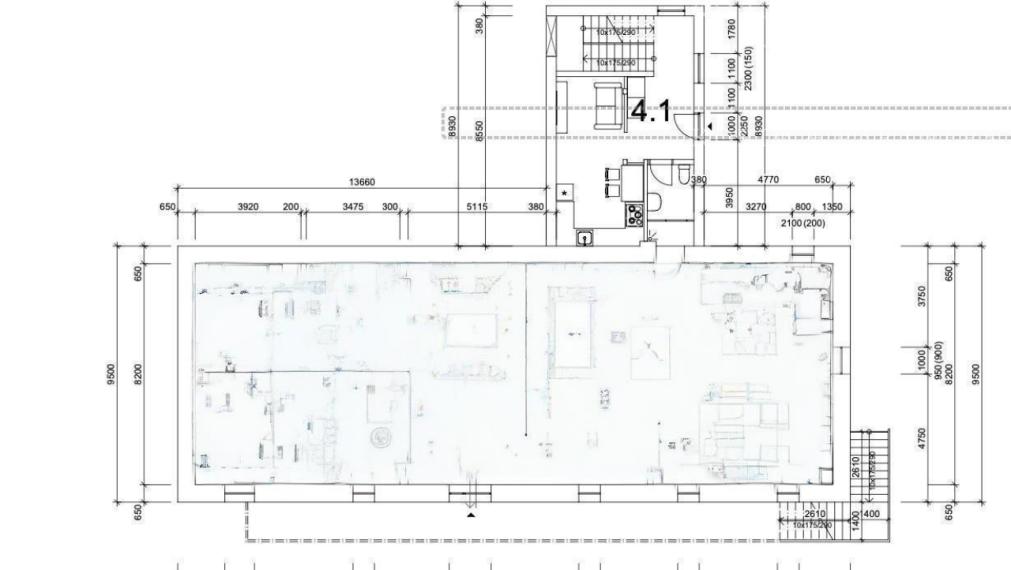
Investičná príležitosť, ktorá sa objaví len raz za čas. Bývalý  VALCOVÝ MLYN  na hlavnom cestnom ťahu cez Hurbanovo ožíva a jeho  premena na moderný polyfunkčný dom s podkrovnými bytmi a podnikateľským priestorom na prízemí je na dosah ruky. 

VALCOVÝ MLYN – unikátny projekt so silným príbehom stojí na pozemku s výmerou 1 740 m². Zastavaná plocha je  268 m². Plánované sú minimálne 3 byty a možno aj 1 jedinečný dvojpodlažný byt. Ostatný príze,mný priestor bude využívaný na komerčné účely. Celý dom bude fungovať energeticky úsporne a sebestačne, čo  znižuje prevádzkové náklady. 

- Vykurovanie a elektrina cez tepelné čerpadlo

- Vlastná vŕtaná studňa

- Napojenie na verejné siete len ako záložný systém

Pred budovou je veľké parkovacie miesto. 

Cena je 88.000,- eur + 1500 eur mesačná splátka úveru cca 6 rokov. Prokejtová dokuntácia je v cene a v prípade vážneho záujmu bude samozrejme sprístupnená. 

Volajte 0948 373 050 pre bližšie informácie. 

 

 

Vlastnosti

Status:
aktívne
Vlastníctvo:
osobné
Stav:
úplne prerobený
Celková plocha:
1021 m2
Úžitková plocha:
536 m2
Počet podlaží:
2
Balkón:
áno
Kúpeľňa:
áno
Energetický certifikát:
áno
Inžinierske siete:
áno
Kanalizácia:
áno
Materiál:
tehla
Zateplený objekt:
áno
Terasa:
áno
Vykurovanie:
vlastné
Status:
aktívne
Vlastníctvo:
osobné
Stav:
úplne prerobený
Celková plocha:
1021 m2
Úžitková plocha:
536 m2
Počet podlaží:
2
Balkón:
áno
Kúpeľňa:
áno
Energetický certifikát:
áno
Inžinierske siete:
áno
Kanalizácia:
áno
Materiál:
tehla
Zateplený objekt:
áno
Terasa:
áno
Vykurovanie:
vlastné

Informatívna úverová kalkulačka

Pozrieť na mape

Maklér

Bc. Róbert Korim RSc.

Bc. Róbert Korim RSc.

Majiteľ/realitný sprostredkovateľ

  • Slovensky
  • Česky
  • English
  • Magyar

Radi Vám poradíme

Podobné nehnuteľnosti