| Ulica: | Hurbanovo | 
|---|---|
| Obec: | Hurbanovo | 
| Okres: | Komárno | 
| Kraj: | Nitriansky kraj | 
| Druh: | Objekty | 
| Typ: | Predaj | 
| Typ objektu: | Sklad | 
Hľadáte sklad, alebo podnikateľský priestor pre svoje podnikanie? Autoservis, predajňa a servis motocyklov, sklad, výrobňa alebo podnikateľský zámer si môžete rozbehnúť v Hurbanove.
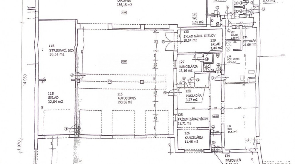
Pozemok, na ktorom je objekt postavený má rozlohu 1010 m2, pričom zastavaná plocha je 684 m2. Dostupnosť z hlavného cestného ťahu je vynikajúca, nakoľko sa nachádza len 50 m od neho. Areál je oplotený a zabezpečený posuvnou železnou bránou, za ktorou je odstavná betonová plocha. Na priečelí budovy má štyri elektricky ovládané brány, z toho dve pre úžitkové vozidlá a dve pre osobné vozidlá. Okrem nich do objektu vedú dvere priamo na recepciu autoservisu.
Predná časť, ktorá teraz slúži na opravu, má rozlohu 190,66 m2 a zadná, terajšia lakovňa má rozlohu 156,15 m2. Ďalšie miestnosti sú - miestnosť pre pneuservis, 3x skladové priestory, 2x kancelária, pokladňa, recepcia, čakáreň pre zákazníkov s barom, kotoľna, 2x toaleta, 3x sprcha a šatňa s kuchynkou.
Na strope v opravárenskej časti sa okrem LED elektrického osvetlenia nachádza svetlík, ktorý zabezpečuje počas dňa dostatok svetla a šetrí náklady na svietenie. Podlaha v dielni a lakovni je liata a okná na budove sú plastové. Kúrenie je plynové, riadené dvoma kotlami (stačí používať len jeden). Kúrenie je kombinované radiátormi a podlahovým kúrením. Na urýchlené vykúrenie dielne slúžia 2 vzduchové fukáre. Objekt je napojený na verejný rozvod plynovodu, vodovod, kanalizáciu, elektrinu a internet. Zabezpečený je alarmom.
Zavolajte hneď alebo potom ako sa uistíte, že potrebujete detailnejšie informáci na číslo 0948 373 050.
 
                                        Majiteľ/realitný sprostredkovateľ