Používame cookies

Súbory cookie a ďalšie technológie sledovania používame na zlepšenie vášho zážitku z prehliadania našich webových stránok, na to, aby sme vám zobrazovali prispôsobený obsah a cielené reklamy, na analýzu návštevnosti našich webových stránok a na pochopenie toho, odkiaľ naši návštevníci prichádzajú. Viac info

 

1000 m² histórie v centre Komárna s potenciálom pre 8–10 bytov

Ulica: Centrum
Obec: Komárno
Okres: Komárno
Kraj: Nitriansky kraj
Druh: Objekty
Typ: Predaj
Typ objektu: Historický objekt
550 000 €

Popis nehnuteľnosti

Niektoré nehnuteľnosti majú iba jedno využitie.
Pri tejto si ho určíte Vy.

Objekt z obdobia okolo roku 1900 v sebe nesie charakter, ktorý sa dnes už bežne nestavia.
Nie preto, že by bol dokonalý. Ale preto, že je výnimočný. 

Možno práve teraz premýšľate, čo všetko by sa tu dalo zmeniť ako v ňom ho zhodnotiť svoj kapitál . To sú práve tie možnosti, aby mal tieto priestory začali fungovať podľa Vašich predstáv.

ZÁKLAD, NA KTOROM SA DÁ STAVAŤ

Nehnuteľnosť sa nachádza na vyše 13-árovom pozemku v historickom centre Komárna.

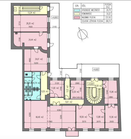
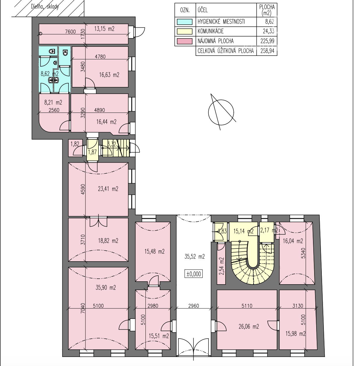
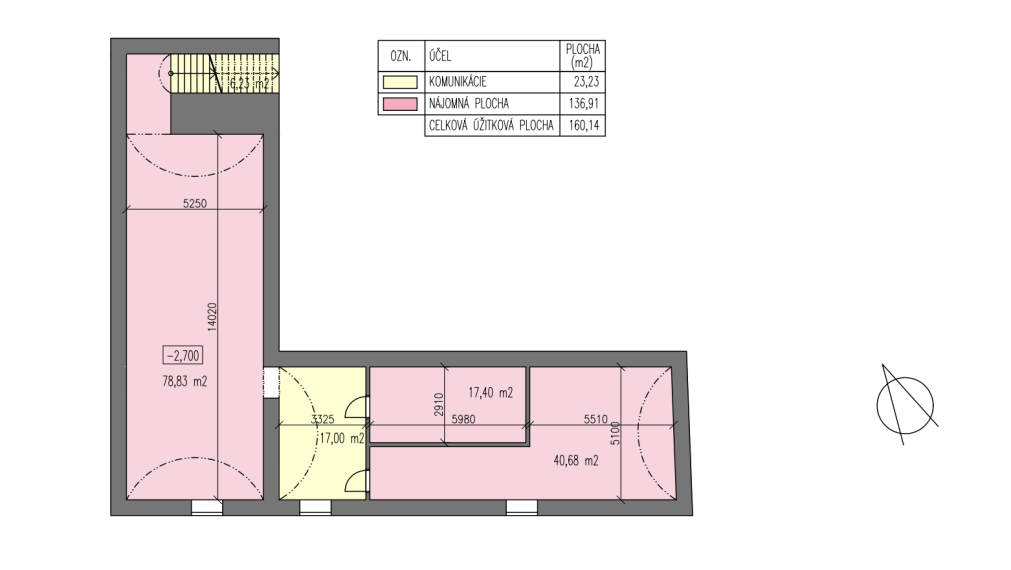
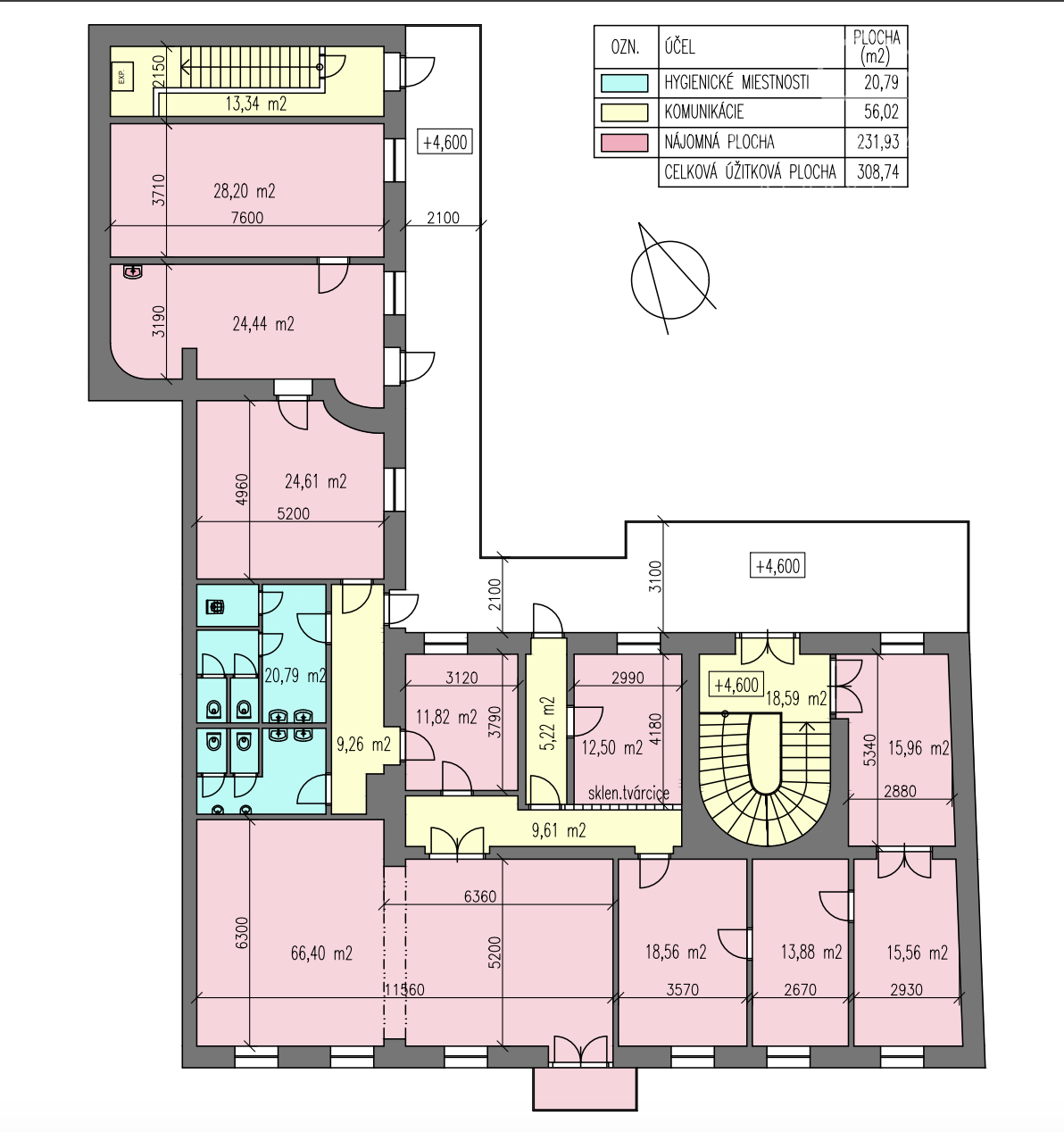
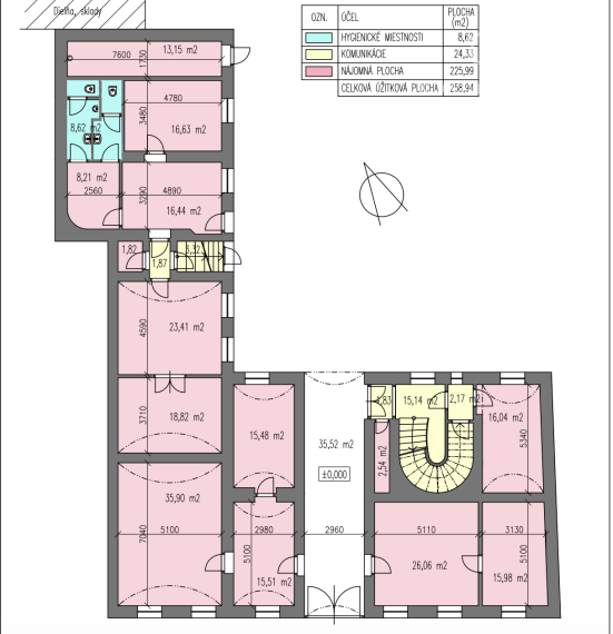
Dispozične ide o viacpodlažnú budovu:

  • 1.PP: cca 160 m² (pivnica v tvare L)
  • 1.NP: cca 258 m² (15 miestností + chodba)
  • 2.NP: cca 308 m² (15 miestností)
  • s možnosťou využitia podkrovia

Na prvé poschodie vedie pôvodné kamenné polotočivé schodisko, ktoré dodáva priestoru charakter a hodnotu.

K dispozícii sú aj:

  • 4 garáže
  • samostatné prízemné priestory (vhodné na byty / služby / sklad)
  • uzavretý dvor s prístreškom
  • KONKRÉTNY INVESTIČNÝ POTENCIÁL

Pri vhodnom dispozičnom riešení je reálne vytvoriť približne 8 – 10 bytových jednotiek (v závislosti od požadovaného  štandardu a veľkostí).

Možnosti využitia:

  • bytový dom na predaj alebo prenájom
  • kombinácia bývania a podnikania
  • apartmánový projekt
  • sídlo firmy s prenajímateľnou časťou
  • Pri správnom návrhu a optimalizácii dispozície ide o projekt, ktorý môže dávať ekonomický zmysel aj v aktuálnych trhových podmienkach.

REALITA, KTORÚ TREBA VIDIEŤ

Nehnuteľnosť si vyžaduje kompletnú rekonštrukciu.
To však zároveň znamená, že výsledok nebude kompromis, ale výsledok realizácie Vašej fantázie. 

Toto nie je nehnuteľnosť pre každého.
Je pre toho, kto v nej vie vidieť viac, než je viditeľné dnes.

DETAILY, KTORÉ ROZHODUJÚ

Niektoré priestory nedávajú zmysel na papieri.
Začnú ho dávať až v momente, keď nimi prejdete.

Uzavretý dvor poskytuje súkromie a priestor, ktorý je dnes v centre mesta skôr výnimkou než štandardom.

Takéto nehnuteľnosti sú v ponuke ojedinele. Ak Vám táto dáva zmysel, dohodnite si obhliadku. 
 

Vlastnosti

Status:
aktívne
Vlastníctvo:
korporácia
Úžitková plocha:
1000 m2
Zastavaná plocha:
1000 m2
Stav:
pôvodný stav
Terasa:
áno
Garáž:
áno
Pivnica:
áno
Verejné vonkajšie parkovanie:
áno
Sklad:
áno
Dielňa:
áno
Rok výstavby:
1900
Celková plocha:
1315 m2
Status:
aktívne
Vlastníctvo:
korporácia
Úžitková plocha:
1000 m2
Zastavaná plocha:
1000 m2
Stav:
pôvodný stav
Terasa:
áno
Garáž:
áno
Pivnica:
áno
Verejné vonkajšie parkovanie:
áno
Sklad:
áno
Dielňa:
áno
Rok výstavby:
1900
Celková plocha:
1315 m2

Informatívna úverová kalkulačka

Pozrieť na mape

Maklér

Bc. Róbert Korim RSc.

Bc. Róbert Korim RSc.

Majiteľ/realitný sprostredkovateľ

  • Slovensky
  • Česky
  • English
  • Magyar

Radi Vám poradíme

Podobné nehnuteľnosti